- Woonoppervlakte
- Circa 117 m²
- Perceeloppervlakte
- Circa 124 m²
- Bouwjaar
- Gebouwd in 1991
- Aantal kamers
- 5 kamers (4 slaapkamers)
IN DE GELIEFDE ZUIDPLAS GELEGEN RUIM COMFORTABEL FAMILIEHUIS MET TWEE DAKKAPELLEN
Welkom in deze verrassend ruime en keurig afgewerkte eengezinswoning, gelegen in de kindvriendelijke wijk Zuidplas.
Deze woning biedt 3 ruime slaapkamers op de 1e verdieping en heeft een fraai afgewerkte zolderverdieping welke met twee dakkapellen sterk vergroot is! Ook heeft het huis een ruime en goed onderhouden achtertuin te bieden met stenen berging en achterom.
Tel daar het ENERGIELABEL A, de moderne voorzieningen, en de gewilde ligging nabij winkelcentrum en scholen bij op– en je hebt het perfecte huis voor het hele gezin!
Bouwjaar 1991. Woonoppervlakte ca. 117m2. Inhoud ca. 419m3. Externe bergruimte ca. 5m2.
Begane grond:
Via de entree kom je in een kleine hal met meterkast (3 fasen en 8 groepen) en directe doorgang naar de ruime living.
Aan de voorzijde vind je een halfopen keuken, uitgevoerd met witte kastfronten, een grijskleurig werkblad en volop opbergruimte. De keuken is uitgerust met een 5-pits gasfornuis, vaatwasser, RVS afzuigkap en een grote losse koelkast. Bovendien heb je hier een leuk en vrij zicht door de straataltijd levendig maar rustig genoeg om prettig te wonen.
Halverwege bevindt zich het sfeervolle eetgedeelte en aan de achterzijde het ruime zitgedeelte. Vanuit de zithoek heb je via openslaande deuren directe toegang tot de fraai aangelegde achtertuin een verlengstuk van je woonkamer!
Tussen de keuken en de zithoek bevindt zich een gesloten trapopgang met voorportaal, waar ook het toilet aan grenst.
De living is uitgerust met vloerverwarming.
1e verdieping:
De eerste verdieping telt drie royale slaapkamers: één aan de voorzijde en twee aan de achterzijde. Alle kamers zijn voorzien van een net doorgelegde laminaatvloer.
De badkamer is volledig betegeld in een moderne grijs-witte kleurstelling en is van alle gemakken voorzien: een ligbad, inloopdouche, hangend toilet, een wandmeubel met dubbele wastafel en een handdoekradiator.
2e verdieping:
De ruime zolderverdieping is flink vergroot dankzij de twee grote dakkapellen aan weerszijden. Hierdoor ontstaat een lichte, open ruimte die voor meerdere doeleinden geschikt is: een extra slaapkamer, thuiswerkplek of hobbyruimte.
De zolder is keurig afgewerkt met strak stucwerk en vloerbedekking, en biedt extra bergruimte achter de knieschotten. Er is een vaste kast met opstelplaats voor de CV-ketel en wasapparatuur.
De kunststof dakkapellen zijn uitgerust met HR++ glas, screens en horren.
Buiten:
De verzorgde achtertuin is slim ingedeeld met een bestraat terras, een groen gedeelte en een beschutte zithoek. Alles is netjes omsloten met houten schuttingen voor optimale privacy. Verder beschikt de tuin over een vrijstaande stenen berging en een achterom– handig voor fietsen of tuinmateriaal.
Afmetingen:
Woonkamer ca. 6.08x5.20m.
Hal ca. 2.27x1.75m.
Keuken ca. 3.35x2.15m.
Slaapkamer voorzijde ca. 2.52x3.42m.
Badkamer ca. 2.57x2.15m.
Slaapkamer achterzijde ca. 4.97x2.98m.
Slaapkamer achterzijde ca. 2.11x3.96m.
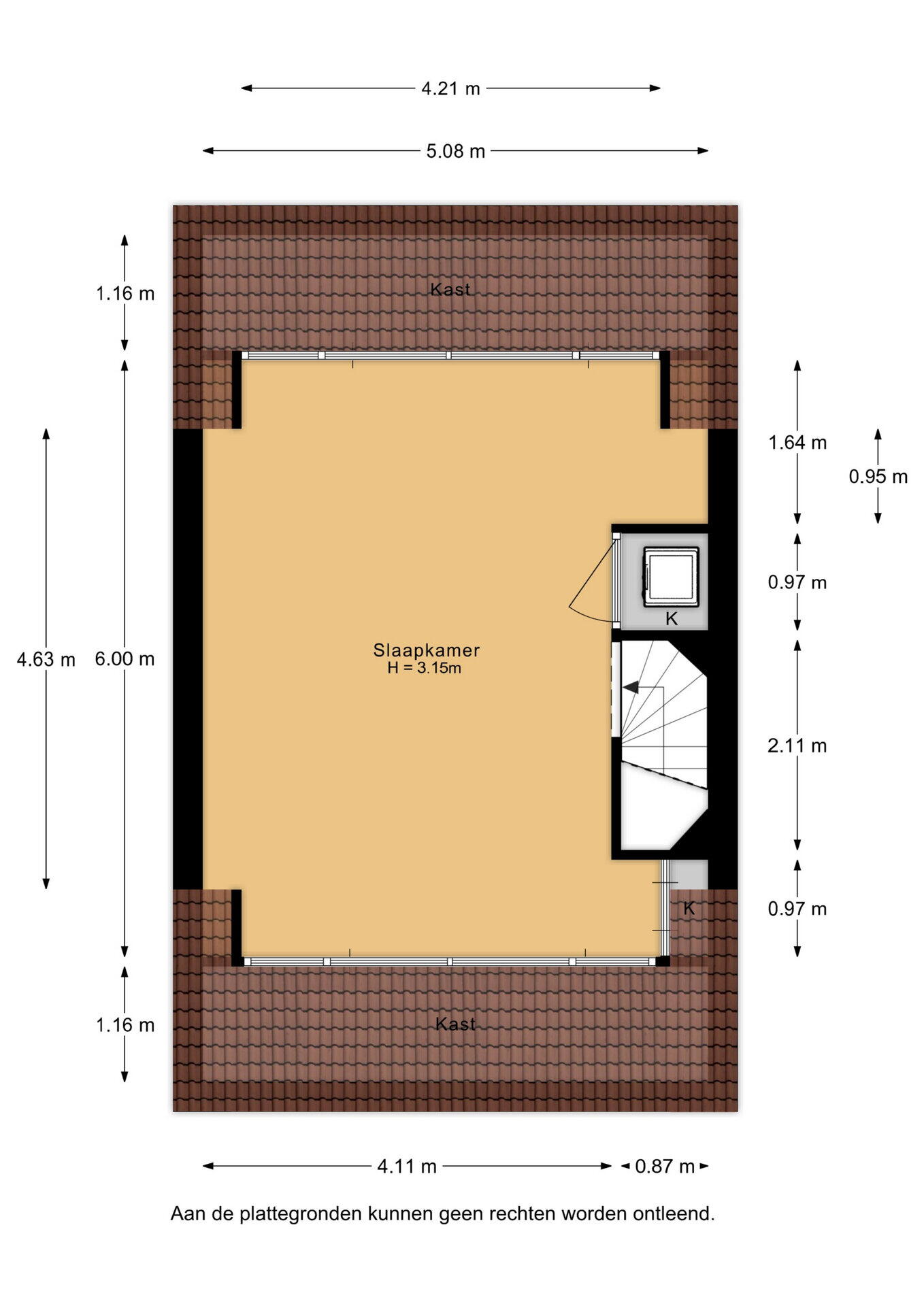
Zolderkamer ca. 4.21x6.00m.
Achtertuin ca. 10.00x5.35m.
Voortuin ca. 3.05x5.44m.
Algemeen:
- Energielabel A– energiezuinig en goed geïsoleerd
- Twee grote dakkapellen voor extra licht en ruimte
- Instapklaar en netjes afgewerkt
- Gelegen in de kindvriendelijke wijk Zuidplas
- Opkorte afstand van de wijk Triangel
- Winkelcentrum Gouweplein ligt dichtbij, met o.a. een Albert Heijn, HEMA, Etos, Gall & Gall,
Blokker, Kruidvat, bakker en diverse horecagelegenheden
- Nabij scholen, kinderopvang, openbaar vervoer en uitvalswegen richting A12 en N207
Ben je op zoek naar een comfortabel, goed onderhouden en ruime gezinswoning met een zonnige tuin en fijne ligging? Dan is deze woning absoluut een bezichtiging waard!
Disclaimer:
Dit woonhuis is ingemeten middels de NEN2580 en is voorzien van een gecertificeerd meetcertificaat. Meetinstructie is bedoeld om een meer eenduidige manier van meten toe te passen voor het geven van een indicatie van de gebruiksoppervlakte. De Meetinstructie sluit verschillen in meetuitkomsten niet volledig uit. Alle verstrekte informatie moet beschouwd worden als een uitnodiging tot het doen van een bod of om in onderhandeling te treden. Er kunnen geen rechten worden ontleend aan deze woninginformatie.
Overdracht
- Vraagprijs
- € 450.000 k.k.
- Status
- Verkocht
- Aanvaarding
- In overleg
Bouw
- Object type
- Eengezinswoning, tussenwoning
- Soort bouw
- Bestaande bouw
- Bouwjaar
- 1991
- Soort dak
- Zadeldak bedekt met pannen
Oppervlakte en inhoud
- Woonoppervlakte
- 117 m²
- Perceeloppervlakte
- 124 m²
- Inhoud
- 419 m³
- Externe bergruimte
- 5 m²
Indeling
- Aantal kamers
- 5 kamers (4 slaapkamers)
- Aantal badkamers
- 1 badkamer
- Badkamervoorzieningen
- Ligbad, toilet, douche, dubbele wastafel
- Aantal woonlagen
- 3 woonlagen
- Voorzieningen
- Mechanische ventilatie, tv-kabel, natuurlijke ventilatie
Energie
- Energielabel
- A
- Energielabel registratie
- 06-06-2025
- Isolatie
- Dakisolatie, muurisolatie, vloerisolatie, dubbel glas, hr glas
- Verwarming
- Cv-ketel
- Warm water
- Cv-ketel
- Cv ketel
- Combiketel gas gestookt uit 2024 (eigendom)
Buitenruimte
- Ligging
- In woonwijk
- Tuin
- Achtertuin, voortuin
- Afmetingen achtertuin
- 54 m² (10 meter diep en 5.35 meter breed)
- ligging tuin
- Gelegen op het noordoosten en bereikbaar via achterom
Bergruimte
- Schuur / berging
- Vrijstaand steen
- Voorzieningen
- Voorzien van elektra
Garage
- Soort garage
- Geen garage
Parkeergelegenheid
- Soort parkeergelegenheid
- Openbaar parkeren
Energieverbruik in Waddinxveen
Energielabel deze woning
Energielabel A
Publicatie energielabel: 06-06-2025
Stroomverbruik per jaar
(Gemiddelde tussenwoning in Waddinxveen)
Gasverbruik per jaar
(Gemiddelde tussenwoning in Waddinxveen)
* Cijfers zijn afkomstig van het CBS en bedoeld als indicatie en kunnen verschillen voor deze woning
Indicatie hypotheeklasten
Eigen inleg:
Spaargeld / overwaarde
Rente:
Laagste 10-jaars rente
Laagste 10-jaars rente
2,73% - Centraal Beheer Groen... - NHG
3% - Centraal Beheer Groen Lee... - 80%
Laagste 20-jaars rente
3,18% - Argenta Groen Hypothee... - NHG
3,39% - Argenta Groen Hypothee... - 80%
Laagste 30-jaars rente
3,35% - Argenta Groen Hypothee... - NHG
3,56% - Argenta Groen Hypothee... - 80%
Hypotheek:
Bruto maandlasten: € 0 p/m
Netto maandlasten: € 0 p/m
Hoe berekenen we dit?
Het rentepercentage is gebaseerd op de laagste 10 jaars vaste rente voor één hypotheekdeel. De vermelde rente (3% zonder NHG) is gecontroleerd op 19-11-2025. Deze berekening is gebaseerd op een annuïteitenhypotheek die volledig wordt afgelost, waarbij de maandlasten gedurende de gehele looptijd gelijk blijven. De werkelijke rente en netto maandlasten kunnen variëren, afhankelijk van uw persoonlijke situatie en de hypotheekverstrekker. Raadpleeg een financieel adviseur voor een nauwkeurige berekening en advies. Aan deze berekening kunnen geen rechten worden ontleend; het dient enkel als indicatie.
Documentatie
Kadastrale kaart
Leefomgeving
Brochure
Plattegronden PDF
BAG uittreksel
Bezoek onze website
Bezichtiging
Bod uitbrengen
Waardebepaling
Zoekopdracht
Alles downloaden
Zonnegrenzen bekijken
Op de kaart
Inwoners in Waddinxveen
Cijfers voor postcodegebied 2743
- Totaal aantal inwoners
- 6965 inwoners
- Mannen
- 51%
- Vrouwen
- 49%
Inwoners in Waddinxveen
Cijfers voor postcodegebied 2743
- tot 15 jaar
- 15%
- 15 tot 25 jaar
- 11%
- 25 tot 35 jaar
- 23%
- 45 tot 65 jaar
- 32%
- 65 en ouder
- 19%
Huishoudens in Waddinxveen
Cijfers voor postcodegebied 2743
- Eenpersoons zonder kinderen
- 26%
- Meerpersoons zonder kinderen
- 35%
- Huishoudens zonder kinderen
- 61%
Huishoudens in Waddinxveen
Cijfers voor postcodegebied 2743
- Huishoudens met één kind
- 5%
- Huishoudens met meerdere kinderen
- 34%
- Huishoudens met kinderen
- 39%
Woningen in Waddinxveen
Cijfers voor postcodegebied 2743
- Woningen voor 1945
- 1%
- Woningen tussen 1945 en 1965
- 1%
- Woningen tussen 1965 en 1975
- 1%
- Woningen tussen 1975 en 1985
- 16%
- Woningen tussen 1985 en 1995
- 61%
Woningen in Waddinxveen
Cijfers voor postcodegebied 2743
- Woningen tussen 1995 en 2005
- 19%
- Woningen tussen 2005 en 2015
- 4%
- Woningen na 2015
- 1%
- Huurwoningen
- 30%
- Koopwoningen
- 70%
Overige in Waddinxveen
Cijfers voor postcodegebied 2743
- Gemiddelde WOZ waarde
- € 280.000,-
- Personen onder de 65 met uitkering
- 7%
Overige in Waddinxveen
Cijfers voor postcodegebied 2743
- Adressen per km²
- 1301
- Stedelijkheid (schaal 1 op 5)
- 60%
Korte feiten over Waddinxveen
Waddinxveen is een plaats en gemeente in de Nederlandse provincie Zuid-Holland op korte afstand van Gouda. De gemeente heeft 32.690 inwoners (31 januari 2023, bron: CBS). Het dijkdorp ontstond in de 13e eeuw als veenontginning op de westoever van de Gouwe.
Van Rhijn Makelaars
Indien u vragen heeft of u wilt een bezichtiging inplannen, dan kunt u gebruik maken van het formulier hiernaast. Er zal daarna op korte termijn contact met u worden opgenomen.
van Limburg Stirumstraat 2
2805 BD, Gouda
0182 – 748 739 info@vanrhijnmakelaars.nl www.vanrhijnmakelaars.nlContact opnemen
Over Van Rhijn Makelaars
Van Rhijn Makelaars, voorheen bekend als Uw Verkoopmakelaars en UwAankoopmakelaars.nl, is uw partner bij het zoeken naar een nieuwe woning of het verkopen van uw huidige woning. Bent u toe aan een grotere woning of wilt u gewoon in een andere omgeving wonen? Dan bent u bij ons aan het juiste adres.
Bij Van Rhijn Makelaars kunt u terecht voor de aankoop, verkoop en verhuur van uw woning in Reeuwijk, Gouda, Bodegraven, Boskoop, Haastrecht, Waddinxveen, Moordrecht en Woerden. Wij bieden alle diensten die u van een makelaar verwacht, maar dan tegen een vast tarief dat vooraf is bepaald. Dit geldt voor zowel de verkoop als de aankoop van uw woning.
Wij zetten moderne tools in, maken duidelijke afspraken en zijn transparant in onze werkwijze. Zo kunt u met een gerust hart uw zoektocht naar een nieuwe woning starten of uw huidige woning verkopen.
Nieuwste reviews
-
Marian Hes
Van Rhijn heeft ons goed geholpen met de verkoop van ons huis. Geen lastige vraag was ze teveel, ze reageerden snel en dachten heel pro-acti...
-
Heuvellaan 120
We hebben dit makelaarskantoor als zeer deskundige,persoonlijk en betrokken ervaren.Top was de snelle terugkoppeling na een bezichtiging.We...
-
Landluststraat 95
Wij zijn heel blij met het deskundige en proactieve advies dat deze makelaars ons konden geven. Ik zou ze iedereen aanbevelen.